Wasco Skylights are now a part of VELUX Commercial, and we are delighted to welcome you to our new website. Here, you will find our complete portfolio of daylight solutions and services for industrial, commercial and public buildings.
Metal-Framed Skylights Designed for easy installation and long-lasting good looks, Metal-Framed Skylights create versatile, fully-customized configurations with a broad range of quality glazing options. View Metal-Framed
Horizon Series Comprised of polycarbonate panel systems, translucent wall systems, and canopy systems, the VELUX Commercial Horizon Series allows for creative daylighting solutions in unique designs. View Horizon Series
Unit Skylights An economic alternative to custom skylighting systems, Unit Skylights offer a wide variety of daylighting options, including standard, circular, and glass-glazed units, and more. View Unit Skylights
Find Commercial Rep Ready to start your next project with VELUX Commercial Skylights? Connect with a VELUX Commercial Rep today! Find Commercial Rep
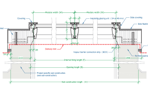
Technical Resources Learn the ins and outs of VELUX Commercial Skylights with our Technical Resources like CAD Drawings, BIM Models, Specs, and more. Download files
Case Studies Explore our commercial case studies, featuring offices, schools, and healthcare facilities, to see and draw inspiration from real-world applications. View cases