EcoSky Dome Skylights Ideal Thermal Performance in Hot and Cold Climates If you are searching for forward-thinking daylighting products for the buildings of tomorrow, our EcoSky Dome Skylights serve as an ideal solution for many applications.
EcoSky Domes Well-suited for both hot and cold climates, these 100 percent haze white glazes beautifully diffuse light while serving as a powerful heat reflector to greatly reduce solar heat gain. Product Details
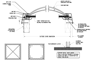
Lumira® Aerogel For superior insulating capabilities, Lumira® Aerogel is a lightweight daylighting solution that repels water and is completely recyclable and eco-friendly. View Lumira Aerogel
Sizing Options VELUX EcoSky Series Skylights are available in a variety of standard sizes for deck- and curb-mount commercial applications. View Sizing
Resources Learn the ins and outs of VELUX Commercial Skylights with resources like CAD Drawings, BIM Models, Specs, and more. View Resources